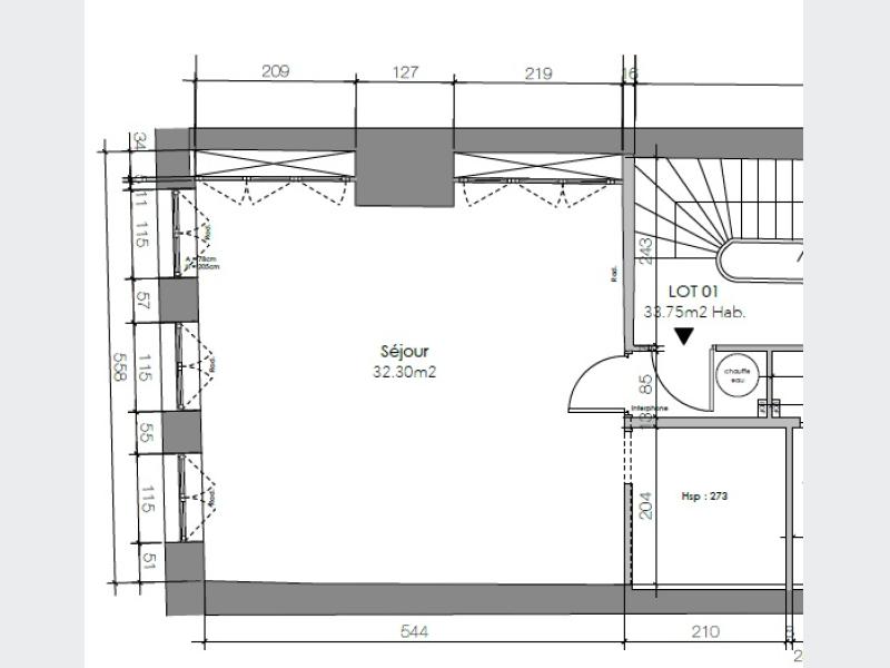
Lille rue Gambetta, côté rue Solférino, à 5 minutes à pieds du métro République, vends très beau et lumineux grand studio de 35 m2 ( possibilité de le transformer en T2 situé au 1er étage d'un bel immeuble en copropriété.
L'appartement est composé d'un sas d'entrée , une grande pièce à vivre de plus de 30 m2 avec belle hauteur sous plafond ( possibilité mezzanine ), coin kitchenette , 1 belle SDB avec douche, simple vasque et WC. Prévoir quelques travaux.
Patries communes rénovées , toiture : RAS
Cachet et charme de l'ancien.
Charges : 60 €/ mois
Taxe foncier : 550 €/ an
Prix : 145 000 € FAI
Diagnostic énergétique en date en date du 18/03/2022, E 264 kw/m²/an dont 10 kgco2/m²/an Estimation des coûts annuels d'énergie du logement : entre 720 et 1010€ par an Prix moyens des énergies indexés au 1er janvier 2021. Les informations sur les risques auxquels ce bien est exposé sont disponibles sur le site Géorisques : www.georisques.gouv.fr.
Date de réalisation du diagnostic : 18/03/2022
Les informations sur les risques auxquels ce bien est exposé sont disponibles sur : www.georisques.gouv.fr
| Surface habitable : | 35 m2 |
| Chambre : | 0 |
| SDB : | 0 |
| Type de chauffage : | Individuel |
| Energie : | Electrique |
| Conso théorique mini : | 920 €/AN |
| Conso théorique maxi : | 1300 €/AN |
| Année de référence : | 2021 |
| Garage : | 0 |
| Copropriété : | Oui |
| Nombre de Lot : | 6 |
| Statut du Syndicat : | |
| Charges de Propriété : | 720 € |
| Procédure en cours : | Non |
| Référence : | gambetta |

